Dall’idea al layout
Ogni macchina RCM nasce da una storia unica: quella del cliente che ci chiede di trasformare una necessità produttiva in una soluzione concreta, efficiente e su misura.
Il punto di partenza è sempre lo stesso: ascoltare.
In un primo incontro, invitiamo il cliente a raccontarci i dettagli del suo processo. Ci mostra i componenti da assemblare, la sequenza di montaggio, le criticità che rallentano la produzione, i controlli che vorrebbe integrare e – soprattutto – la cadenza produttiva desiderata. Sono informazioni preziose perché ci permettono di entrare nel cuore della sua linea produttiva e immaginare insieme come migliorarla.
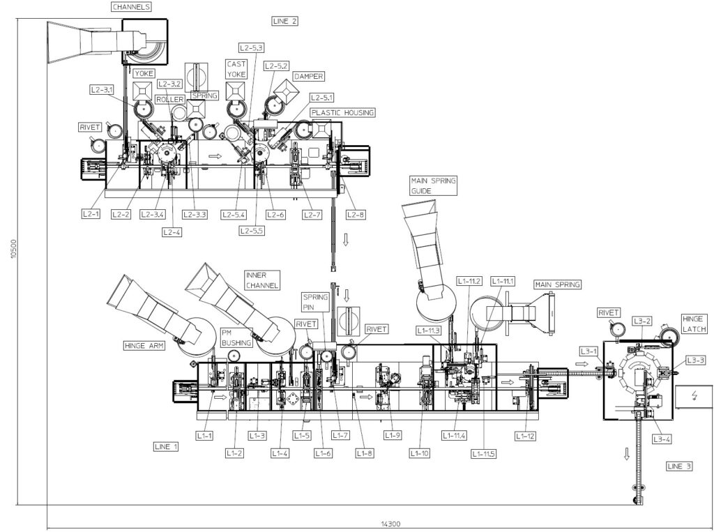
A questo punto, il nostro ufficio tecnico raccoglie e analizza tutti i dati. È qui che inizia a prendere forma la prima idea di macchina: un layout preliminare.

Non si tratta ancora di un progetto definitivo, ma di una mappa concettuale che definisce:
- il tipo di struttura (lineare, tavola rotante, o altre soluzioni);
- il numero e la disposizione delle stazioni;
- gli spazi necessari;
- i sistemi di alimentazione dei componenti.
Il layout è come lo schizzo di un architetto: una visione che traduce le esigenze del cliente in una proposta concreta. Viene discusso e condiviso, con la possibilità di apportare modifiche e ottimizzazioni.
Spesso, è proprio in questa fase che emergono le idee più interessanti, perché l’interazione con il cliente permette di affinare la soluzione e renderla davvero adatta alle sue necessità.
In alcune situazioni, questa fase include anche un’attività di co-design del prodotto da assemblare: proponiamo modifiche ai componenti del cliente per semplificare l’automazione e/o migliorare l’affidabilità del processo.
Naturalmente, la funzionalità del prodotto resta sempre a carico del cliente, ma se il prodotto è ancora in fase prototipale, queste ottimizzazioni vengono quasi sempre accolte con favore perché rendono l’intero progetto più robusto ed efficace.
Tutto questo lavoro preliminare è propedeutico a un passo fondamentale: la stesura dell’offerta tecnica. In questa fase, traduciamo il layout e le analisi in una proposta dettagliata, che descrive con precisione ogni stazione della macchina, i sistemi di movimentazione e controllo, le tecnologie integrate e – se richiesto – anche un capitolato tecnico di riferimento.
L’obiettivo è fornire al cliente una visione chiara e trasparente di ciò che la macchina conterrà e delle sue funzionalità.
Una volta pronta, l’offerta non viene semplicemente inviata.
Preferiamo presentarla di persona: incontriamo il cliente, raccontiamo nel dettaglio le soluzioni proposte e rispondiamo alle domande. Questo momento è cruciale, perché permette di chiarire ogni aspetto, raccogliere ulteriori spunti e consolidare la fiducia reciproca.

Per RCM, questa fase non è solo tecnica: è anche un momento di co-creazione.
Ci piace pensare che ogni macchina nasca da un dialogo, non da un catalogo. E così, passo dopo passo, dal confronto iniziale con il cliente al layout condiviso, prende forma la prima vera fotografia della macchina che diventerà protagonista del suo processo produttivo.






